Description
The ES30 Force Measurement Test Stand is a versatile and economical solution for most compression and tensile testing applications. It can accept a wide variety of sample shapes and sizes and can be configured in many positions due to modular design.
Column extensions are available for this test stand to accommodate larger samples and grips.
Precision hand wheel operation enables the user to easily and accurately test up to 200 lbF [1 kN] of force. Use the ES30 with any Mark-10 force gauge and grips to create a complete testing solution.
Features and Specifications
- Maximum Force: 200 lbF (1 kN)
- Maximum Travel: 13" (330 mm)
- Loading Method: Hand Wheel
- Travel rate: 0.05"/hand wheel rotation
- Base Connection: 5/16-18 threaded center hole, matrix of threaded #10-32.
- See dimensional drawing further down for more detail.
- Threaded and Eye End Adapters are available if other connections are needed.
- 3 Year Warranty
If outputting data to a PC
Outputting force data to a PC, the following items are required:
- A Series 3, Series 4, Series 5, or Series 7 force gauge. All of these gauges listed include a USB cable which can be connected directly to a PC.
Outputting travel data to a PC, the following items are required:
Downloads
Included Items
The ES30 test stand is shipped as shown at left, and includes the following accessories:
(1) G1009 compression plate, 2” dia.
(1) G1028 small hook
(1) G1030 thread adapter, 5/16-18M to #10-32F
(1) G1038 medium hook
(1) G1039 coupling, #10-32F/F
(1) Hand wheel
(4) Thumb screw for force gauge
(1) Allen wrench set
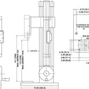
Dimensions - in[mm]
